
Porch in “El hoyo”
San Vicente de la Barquera, Cantabria, Spain.
Participants: Javier Torrego Pérez.
Condition: Waiting for license.
Tutor: Autonomous.
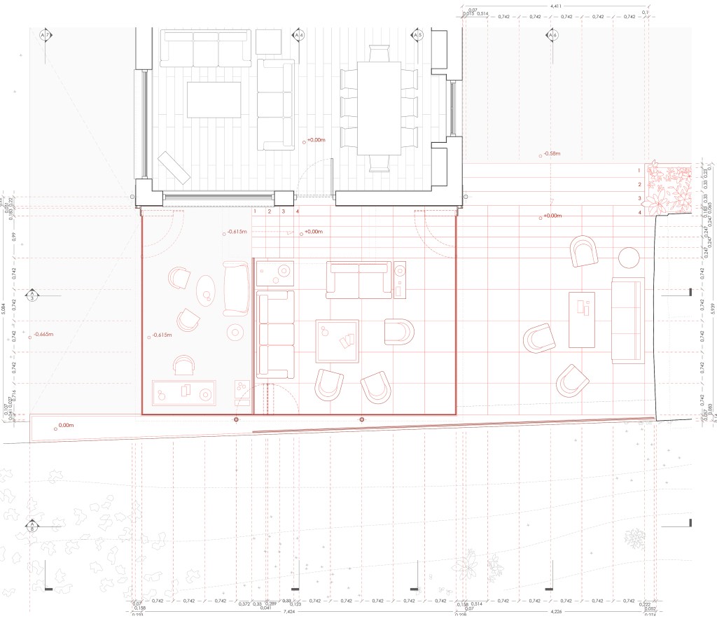
The house object of the extension is a construction of two heights above ground, rectangular and covered with gabled, with the main access on its eastern façade and a small viewpoint to the south. The purpose of the property is the creation of a porch on the ground floor on that south façade, which gives continuity to the living room.
The construction is located on a plot of rustic land and is part of a dispersed building complex, which adjoins a public road in all its orientations. This set is made up of the house itself and an old stable today used as a store. In addition this , it is included in the catalog of rustic land buildings of the municipality of San Vicente de la Barquera, specifically in the 4i4 file.
The porch consists of a cink roof on a light steel structure, with cantilevered corners on which a glass curtain system. Under this roof, two spaces coexist simultaneously, spatially differentiated by their level and pavement, each of them closely related to an outdoor space.












