
Tvornica torpedo complex
Rijeka, Croatia.
Participants: Javier Torrego Pérez
Tutor: Vedran Mimica
University: IIT
The Tvornica Torpedo Complex is proposed as a new center for the city of Rijeka, replacing the financial center of the city with huge rehabilitated industrial spaces that were once abandoned. This spaces are partially owned by the city council and are located on the seafront of the city, among which consists the first factory of torpedoes in the world, as well as other buildings of high value for the historical of Rijeka.
The railway infrastructural line of the European Union that connects the port of Rijeka directly with Zagreb and the nearby countries, stops when it reaches the height of the almost finished container storage platform in the port, this is the ongoing Gateway project , remaining thus in disuse the section that remains to the old industrial network to the Torpedo complex. This section of Rijeka´s port comprises thousands of linear meters of roads that interlock and accompany until they flow into the wharehouses. This section of roads will be the connection vector of the complex with the rest of the city. The train tracks follow a line parallel to the coastline, cordoning off the city, preventing Rijeka from having direct access to the sea front.
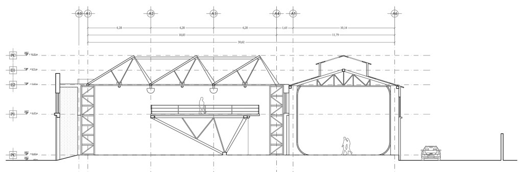
The complex has as a cornerstone a colavorative offices in which we hypothesize that the swiss company Ericson lodged its proposal «Ferari», initiative stagnant since 2016, which aims to convert the city of Rijeka into a «Smart City» connecting all users of a series of applications on electronic devices using the «Big Data» as a tool. These offices are located in the west wing of the complex in the Torpedo Sheds that had been in use from 1870 to 1990, the year in which the torpedo company went bankrupt. These massive spaces contain a very large historical value, especially the topedo launcher platform, incorporated into the public space in the proposal.
Ericson´s workers would be lodged in the residential area in the east of the complex. The first residence building will be located In what used to be the wharehouse of trains owned by the company INA closest to the coast. The second residential building will be of rental buildding, a new branch of rental that is looking for sites to be tested. The roof of these wharehouses has been designed to extend the footprint of the building.
In this way, the strip of train tracks from the city to the sea will become a linear park, which reconditions the train tracks for pedestrian use, cyclist in addition to insert local program. The widest section proposed by this fragment of roads is 60 m, so this space is organized into different programmatic packages such as itinerant trains with small businesses of local entrepreneurship, in addition to areas of high density trees and variable topography.















